OLIVER ROSER ARCHITEKTEN
OLIVER ROSER ARCHITEKTEN

PROJEKTAUSWAHL

2017-2020

Integration Aufzugsanlage und Auffrischen Treppenräume / Allgemeinzugänge

 

Wohngebäude Gründerzeit-Altbau Zionskirchstraße Berlin

Rosé = Neu

Grün = Unsaniert

Minimal-Eingriff & trotzdem deutlich

Neue Aufzugs-Fenster & Alter Ausblick auf jeder halben Treppe

Aufzug so selbstverständlich wie möglich in den Bestand einfügen

Nachträgliche Integration: Baustelle nur da wo es unbedingt sein muss

 

__________________________________________

 

 

2016-2021

Denkmalgerechte Sanierung historische Fachwerk-Konstruktion, Fassade, Dächer und Innenräume

 

HAUS GREVE WOLFENBÜTTEL

Wohn- und Geschäftshaus Stadtmarkt / Kornmarkt

Sanierung Fenster, Fassade und Dach,

Ansicht von Kornmarkt zur Passage Stadtmarkt,

Renaissance-Giebel in Grüntönen,

Eckhaus Barockzeit in Grautönen,

Ladenzone Erdgeschosse noch unsaniert in Brauntönen

Denkmalgerechter Farbwechsel

Malerarbeiten Renaissance-Fachwerk

Kompletter Farbabtrag nach 400 Jahren

Fachwerksanierung mit Pass-Stücken aus abgelagerter Eiche,

Austausch der Fenster, Kreuzstockfenster nach historischem Vorbild

Instandsetzung Fachwerk mit Pass-Stücken und teilweise neuen Holzverbindungen

Instandsetzung Zwerghäuser und Giebel,

Austausch der Hölzer,

Neue Ausmauerung der Gefache

Vorbereitung Neueindeckung mit historischen Ziegeln

Wiederherstellung Traufausbildung vor Neueindeckung

Malerarbeiten Eckkonsole Renaissance-Fachwerk

Fassade Stadtmarkt nach Farbwechsel der Gesamtfassade

Fenster, Ziegel und Schiefer frisch

Integration von Gauben statt Dachflächenfenstern

Rohkonstruktion Gaube und Abbruch Dachfenster

Integration von Gauben statt Dachflächenfenstern

Neue Fenster, offenes Ständerwerk und Lehmputz

Ausblick Stadtmarkt und geölte Dielen

 

__________________________________________

 

 

2012

Aufbereitung einer neobarocken Altbau-Wohnung

Knesebeckstraße Berlin

 

Umnutzung / Modernisierung Seitenflügel nach Entkernung

 

Ideeskizze Bad

Bad mit verdeckter Hauswirtschaftsnische für Waschen, Trocknen, Bügeln und Lagern

Bäder im Seitenflügel mit neuen Türöffnungen als Tischlernachbau im Stilprogramm der alten Nebenraumtüren

Neue Türen roh

Dusch- und Gästebad,

Nachbau Altbautüren inklusive Futter und Bekleidung

Freilegung der Original-Decken und -Nischen,

Bodenaustausch mit massiven heimischen Nadelholzdielen,

Wiederherstellung stimmiger Raumabschlüsse,

Türnachbauten Nebenräume, Nischenregale

Umnutzung ehemalige Küche zu Schlafzimmer,

Ehemalige Speisekammer wird zu Nischen-Regal mit Fenster-Lüftungsfunktion, Schallschutzverbesserung und "Raumreparatur"

Flexible Sonderanfertigung Ankleidemöbel

 

__________________________________________

 

 

2019 - 2020

Minimal umbauen - Maximal wiederverwenden

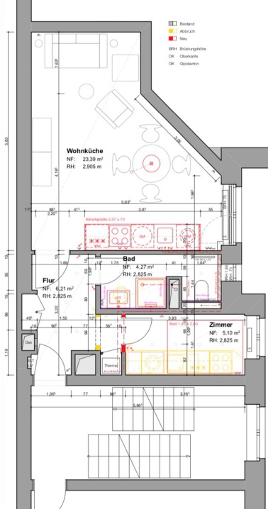
Wohneinheit Chodowieckistraße Berlin

Küchenzeile behutsam integrieren

Maximal Wiederverwenden

Küche umziehen und ein Zimmer mehr

 

__________________________________________

 

 

2020 - 2021

Einmal alle Oberflächen bitte - Sanierung einer Wohneinheit

Borodinstraße Berlin

Licht & Luft

"Niko-Vorhänge entsorgen"

Fenster, Bad & Dusche frisch

Maximal Wiederverwenden

Zimmer Küche Fenster auf

Licht & Luft mit französichem Fenster-Austritt

 

___________________________________________

 

 

 

___________________________________________

 

 

2015 - 2025

Denkmalschutz-Sanierung und Nutzungserweiterungen Kirchengebäude,

Projektentwicklung Wohn- und Geschäftsgebäude als Blockrand,

Wilhelmsaue / Uhlandstraße / Blissestraße Berlin

Bezahlbare Barrierefreie Wohnungen

Druckversion | Sitemap
© Oliver Roser Architekten 2023